82 Fayette StLynn, MA 01902
Due to the health concerns created by Coronavirus we are offering personal 1-1 online video walkthough tours where possible.




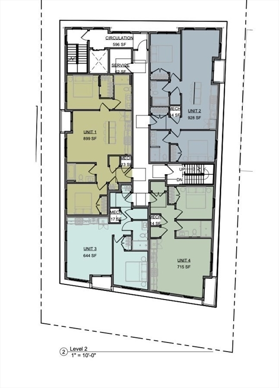
Approved 8-unit development opportunity at 82 Fayette Street in Lynn’s rapidly growing and revitalizing market. This shovel-ready project is fully permitted with foundation work already underway, reducing both timeline and upfront risk. The approved plans feature four single-level units on the first floor and four spacious duplex units above, offering a versatile mix of 1, 2, 3, and 4-bedroom layouts to maximize market appeal. All approvals are secured, allowing immediate continuation of construction. Ideal for investors seeking strong rental income, condo conversion potential, or resale profit, this project is positioned in a high-demand location with continued appreciation and excellent return potential.
| yesterday | Listing updated with changes from the MLS® | |
| 4 weeks ago | Listing first seen on site |
The property listing data and information, or the Images, set forth herein were provided to MLS Property Information Network, Inc. from third party sources, including sellers, lessors, landlords, and public records, and were compiled by MLS Property Information Network, Inc. The property listing data and information, and the Images, are for the personal, non-commercial use of consumers having a good faith interest in purchasing, leasing or renting listed properties of the type displayed to them and may not be used for any purpose other than to identify prospective properties which such consumers may have a good faith interest in purchasing, leasing or renting. MLS Property Information Network, Inc. and its subscribers disclaim any and all representations and warranties as to the accuracy of the property listing data and information, or as to the accuracy of any of the Images, set forth herein.
Last checked 2026-04-16 10:44 AM UTC

