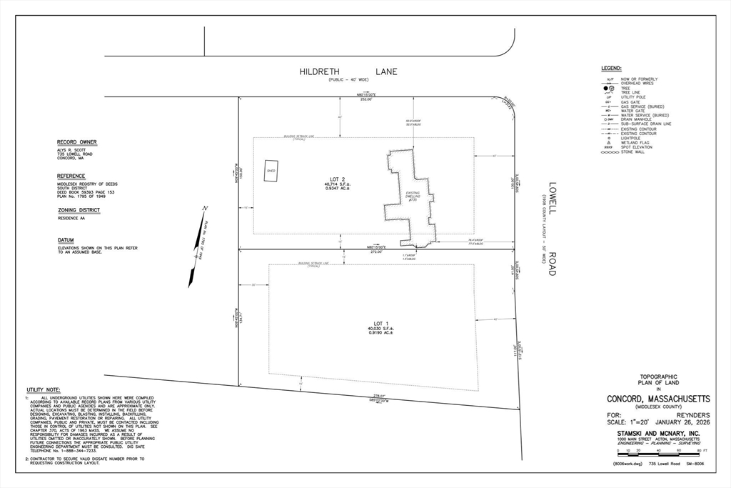
735 Lowell Rd Lot 1 LandConcord, MA 01742
Due to the health concerns created by Coronavirus we are offering personal 1-1 online video walkthough tours where possible.




Gorgeous level plot of land with mature trees on one of Concord's most desired streets. The fenced in land measures almost an acre. Stroll down the sidewalk to nearby Concord Center. The survey and septic plan have been completed. As part of the MA Affordable Homes Act in 2024, this lot is now available for sale for the first time in over 75 years. Your new home must include 3+ bedrooms and be less than 1850 heated square feet. Maybe you are dreaming of a custom home with a first floor primary suite or a right sized new home on a beautiful lot. This is your opportunity. All you need to bring are your ideas.Adjacent listing at 735 Lowell Rd with home is listed separately as MLS #73482304.
| yesterday | Listing updated with changes from the MLS® | |
| yesterday | Listing first seen on site |
The property listing data and information, or the Images, set forth herein were provided to MLS Property Information Network, Inc. from third party sources, including sellers, lessors, landlords, and public records, and were compiled by MLS Property Information Network, Inc. The property listing data and information, and the Images, are for the personal, non-commercial use of consumers having a good faith interest in purchasing, leasing or renting listed properties of the type displayed to them and may not be used for any purpose other than to identify prospective properties which such consumers may have a good faith interest in purchasing, leasing or renting. MLS Property Information Network, Inc. and its subscribers disclaim any and all representations and warranties as to the accuracy of the property listing data and information, or as to the accuracy of any of the Images, set forth herein.
Last checked 2026-03-06 05:03 AM UTC


Did you know? You can invite friends and family to your search. They can join your search, rate and discuss listings with you.