7 WashingtonSomerville, MA 02143
Due to the health concerns created by Coronavirus we are offering personal 1-1 online video walkthough tours where possible.




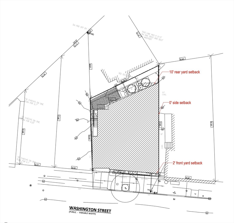
Rare high density development opportunity in Somerville with ZBA approved plans for 10 units, with the option for 12 with new somerville guidelines. This is a prime chance to invest in one of Somerville’s most sought-after neighborhoods. Currently used as a tenanted single-family residence, this MR-4 zoned lot allows for 4-story development - ideal for condo sellout, or multi-family hold. located less than 0.4 miles from the Green Line Extension and just minutes from Sullivan Square, Union Square, and Route 93, this property offers exceptional accessibility. Easy access into Boston and Assembly. Plans can either be advanced or modified to suit your vision, with options for lower unit count / create larger units.
| 3 weeks ago | Listing updated with changes from the MLS® | |
| 3 months ago | Listing first seen on site |
The property listing data and information, or the Images, set forth herein were provided to MLS Property Information Network, Inc. from third party sources, including sellers, lessors, landlords, and public records, and were compiled by MLS Property Information Network, Inc. The property listing data and information, and the Images, are for the personal, non-commercial use of consumers having a good faith interest in purchasing, leasing or renting listed properties of the type displayed to them and may not be used for any purpose other than to identify prospective properties which such consumers may have a good faith interest in purchasing, leasing or renting. MLS Property Information Network, Inc. and its subscribers disclaim any and all representations and warranties as to the accuracy of the property listing data and information, or as to the accuracy of any of the Images, set forth herein.
Last checked 2026-03-04 06:26 AM UTC


Did you know? You can invite friends and family to your search. They can join your search, rate and discuss listings with you.