29 Franklin StNeedham, MA 02494
Due to the health concerns created by Coronavirus we are offering personal 1-1 online video walkthough tours where possible.




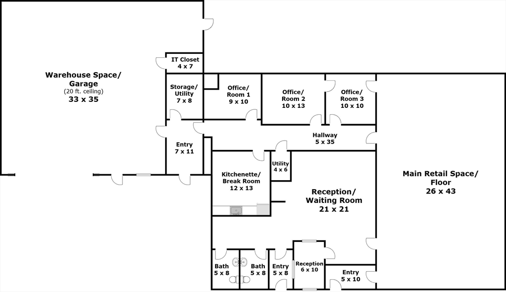
Desirable location with easy access to highway: Space was previously used as a Cannabis establishment. Enter through private front entrance including seating area and two bathrooms (see attached floor plan) The waiting area leads to the large open area with countertops desks. The hallway off this area leads to the kitchen & three private offices. Through this hallway it leads you to a common area with supply closet and opens to industrial size garage. Open for discussion to lease Garage separately from office area. Parking available directly outside of building: Sheraton Boston Needham: .06 Miles Needham Heights commuter rail 1.3 Miles: Zoning:Commercial activities like equipment rental and accessory retail sales, and potentially other uses such as veterinary offices (with a special permit). Please inquire if interested in Building or Building with Garage as Price noted is just for Building
| 2 months ago | Listing updated with changes from the MLS® | |
| 3 months ago | Listing first seen on site |
The property listing data and information, or the Images, set forth herein were provided to MLS Property Information Network, Inc. from third party sources, including sellers, lessors, landlords, and public records, and were compiled by MLS Property Information Network, Inc. The property listing data and information, and the Images, are for the personal, non-commercial use of consumers having a good faith interest in purchasing, leasing or renting listed properties of the type displayed to them and may not be used for any purpose other than to identify prospective properties which such consumers may have a good faith interest in purchasing, leasing or renting. MLS Property Information Network, Inc. and its subscribers disclaim any and all representations and warranties as to the accuracy of the property listing data and information, or as to the accuracy of any of the Images, set forth herein.
Last checked 2026-02-11 06:17 AM UTC


Did you know? You can invite friends and family to your search. They can join your search, rate and discuss listings with you.