Save
Ask
Tour
Hide
$1,535,000
1 Day On Site
135-37 141 Union StreetNew Bedford, MA 02740
For Sale|Commercial Sale|Active
0
Beds
0
Total Baths
1880
Built
County:
Bristol
Due to the health concerns created by Coronavirus we are offering personal 1-1 online video walkthough tours where possible.




Save
Ask
Tour
Hide
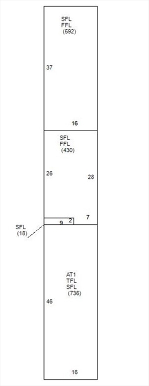
Offered as two mixed-use buildings, recenlty completely renovated by WHALE, New Bedford's preeminent preservation organization. These buildings have been designed with the highest standards of energy efficiency by Studio 2 Sustain, a local architectual firm. These trophy properties epitomize the renaissance occurring in Downtown New Bedford. They are fully tenanted with quality occupants. Financials available for serious buyers. NDA to be signed for financials.
Save
Ask
Tour
Hide
Listing Snapshot
Price
$1,535,000
Days On Site
1 Day
Bedrooms
N/A
Inside Area (SqFt)
N/A
Total Baths
N/A
Full Baths
N/A
Partial Baths
N/A
Lot Size
N/A
Year Built
1880
MLS® Number
73452601
Status
Active
Property Tax
$4,350.64
HOA/Condo/Coop Fees
N/A
Sq Ft Source
N/A
Friends & Family
Recent Activity
| yesterday | Listing updated with changes from the MLS® | |
| yesterday | Listing first seen on site |
General Features
Sewer
Public Sewer
Water Source
Public
Zoning
Mixed Use
Save
Ask
Tour
Hide
Community Features
MLS Area
Center
Listing courtesy of E. Jeffrey Pontiff of E. J. Pontiff Real Estate
The property listing data and information, or the Images, set forth herein were provided to MLS Property Information Network, Inc. from third party sources, including sellers, lessors, landlords, and public records, and were compiled by MLS Property Information Network, Inc. The property listing data and information, and the Images, are for the personal, non-commercial use of consumers having a good faith interest in purchasing, leasing or renting listed properties of the type displayed to them and may not be used for any purpose other than to identify prospective properties which such consumers may have a good faith interest in purchasing, leasing or renting. MLS Property Information Network, Inc. and its subscribers disclaim any and all representations and warranties as to the accuracy of the property listing data and information, or as to the accuracy of any of the Images, set forth herein.
Last checked 2025-11-09 02:26 AM UTC
The property listing data and information, or the Images, set forth herein were provided to MLS Property Information Network, Inc. from third party sources, including sellers, lessors, landlords, and public records, and were compiled by MLS Property Information Network, Inc. The property listing data and information, and the Images, are for the personal, non-commercial use of consumers having a good faith interest in purchasing, leasing or renting listed properties of the type displayed to them and may not be used for any purpose other than to identify prospective properties which such consumers may have a good faith interest in purchasing, leasing or renting. MLS Property Information Network, Inc. and its subscribers disclaim any and all representations and warranties as to the accuracy of the property listing data and information, or as to the accuracy of any of the Images, set forth herein.
Last checked 2025-11-09 02:26 AM UTC
Neighborhood & Commute
Source: Walkscore
Save
Ask
Tour
Hide


Did you know? You can invite friends and family to your search. They can join your search, rate and discuss listings with you.