211 S Main StBellingham, MA 02019
Due to the health concerns created by Coronavirus we are offering personal 1-1 online video walkthough tours where possible.




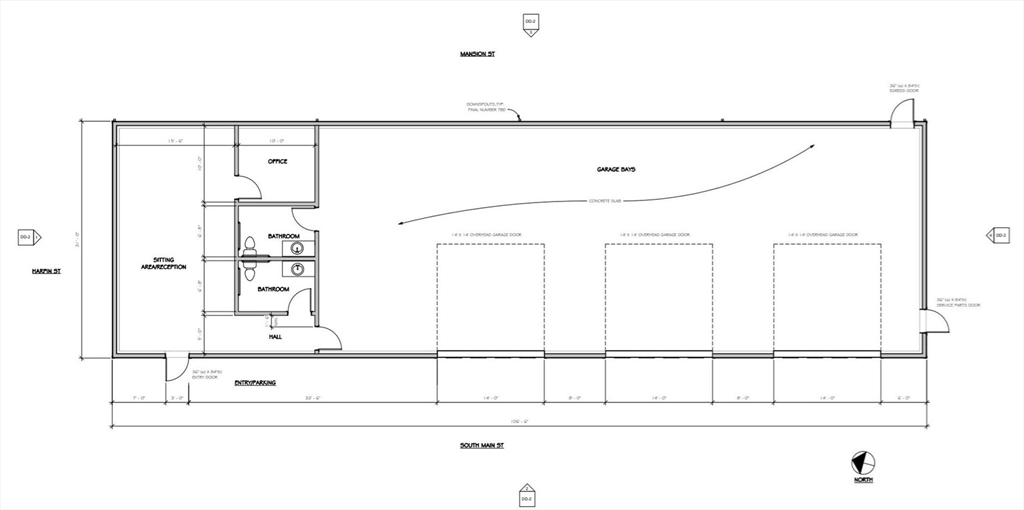
Commercial lot available on Route 126 in Bellingham. This is a Business 1 zoned conforming lot with an approved Development Plan and Stormwater Management Permit in hand. Approval is for a 3300 Sq/ft automotive repair center. There are no wetlands and no special permits were needed for this project. The approved building design has 18ft ceilings and 3 large 14ft x 14ft garage doors set up to fit 5 car lifts. Layout also offers adequate space for offices and waiting area. There are several other "by right" uses for this land if you are looking to do something other than an auto repair. Pictures of the lot are from last year when it was cleared off for the perc testing. General use regulations are attached to listing. Short term owner financing available to the right buyer.
| 2 months ago | Listing updated with changes from the MLS® | |
| 2 months ago | Listing first seen on site |
The property listing data and information, or the Images, set forth herein were provided to MLS Property Information Network, Inc. from third party sources, including sellers, lessors, landlords, and public records, and were compiled by MLS Property Information Network, Inc. The property listing data and information, and the Images, are for the personal, non-commercial use of consumers having a good faith interest in purchasing, leasing or renting listed properties of the type displayed to them and may not be used for any purpose other than to identify prospective properties which such consumers may have a good faith interest in purchasing, leasing or renting. MLS Property Information Network, Inc. and its subscribers disclaim any and all representations and warranties as to the accuracy of the property listing data and information, or as to the accuracy of any of the Images, set forth herein.
Last checked 2025-11-16 02:58 PM UTC


Did you know? You can invite friends and family to your search. They can join your search, rate and discuss listings with you.